For a better view on Rentals By CIREBA, Update Your Browser.

Turtle Cove 1 Bed Condo

Condo
Seven Mile Corridor, Grand Cayman
CI$3,450
RMLS#: 6663

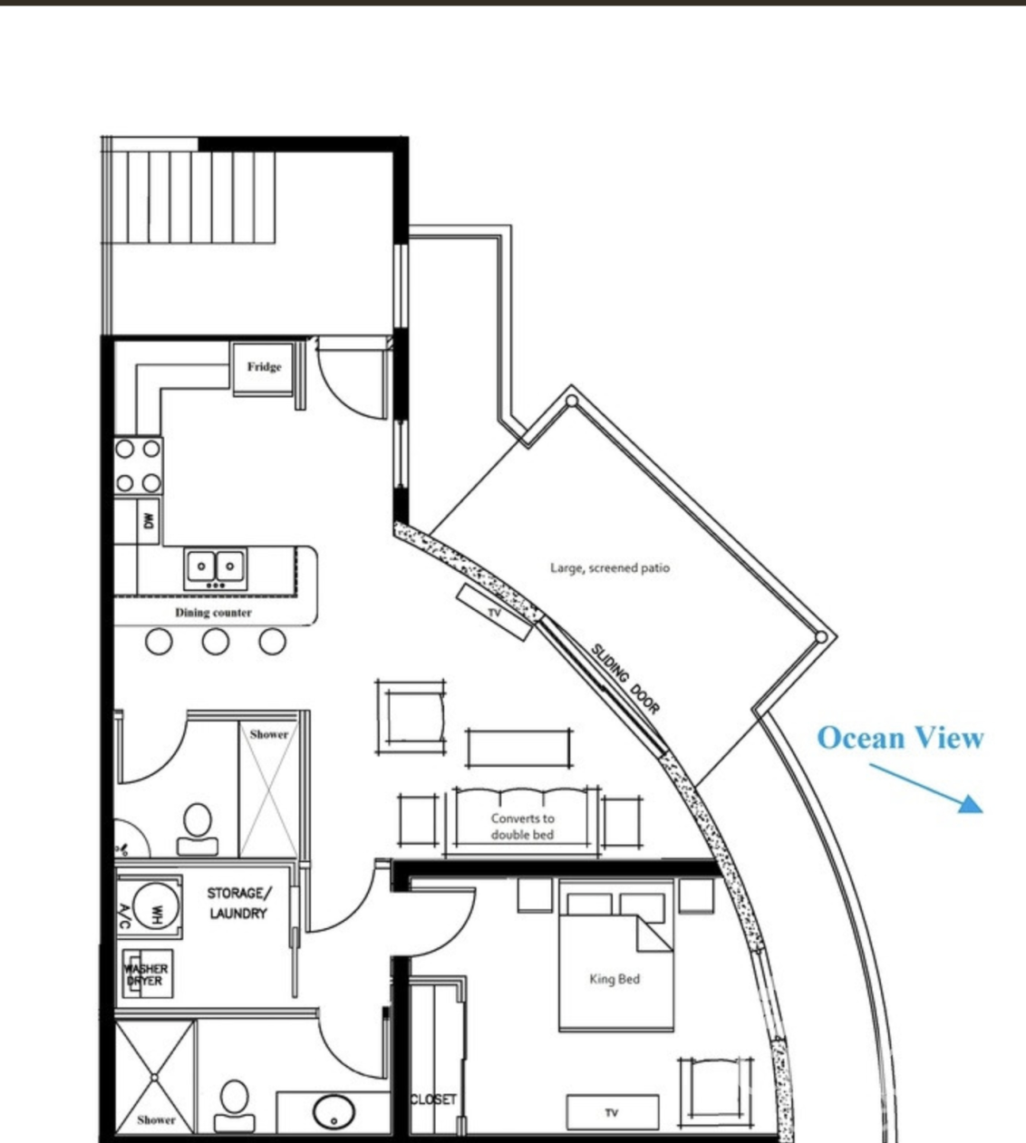
Floor Plans

Square Feet Bedrooms Bathrooms
785 1 2

Features

  • Property Type: Condominium / Apartment
  • View: Canal View
  • Status: New
  • Pets Friendly: Yes
  • Block: 12C
  • Parcel: 386H22

*Disclaimer:

CIREBA uses a conversion rate of KYD 0.82 to US 1.00. It is important to check with your local real estate agent or financial institution as the KYD/USD exchange rate may differ when purchasing real estate in the Cayman Islands.

The information contained herein has been furnished by the owner(s) and or their nominee and represented by them to be accurate. The listing company, agent and CIREBA MLS disclaims any liability or responsibility for any inaccuracies, errors or omissions in the represented information. All the information contained herein is subject to errors, omissions, price changes, prior sale or withdrawal, without notice and is at all times subject to verification by the purchaser(s).

Property Description

Positioned along the sought-after Seven Mile Beach corridor, this beautifully appointed one-bedroom residence at Turtle Cove Condos offers a refined blend of comfort, convenience, and coastal living.

Prime Seven Mile Beach Location
Perfectly located just minutes from Camana Bay, you are at the center of Caymans most vibrant lifestyle hub, home to boutique shopping, exceptional dining, fitness studios, and everyday essentials.

Walk to World-Class Beaches
The world-renowned Seven Mile Beach is also just a short stroll away, inviting you to start or end your day with uninterrupted ocean views and soft white sand underfoot.

Designed for Effortless Living
This residence is designed for effortless living. The open-plan layout creates a natural flow between kitchen, dining, and living spaces.

Bright Open-Plan Interiors
Large windows welcome natural light, enhancing the sense of space and connection to the surrounding tropical setting.

Private and Peaceful Bedroom Retreat
The spacious bedroom provides a calm, private retreat, ideal for rest and reset after a full day.

Access to Top Dining and Fitness
Residents benefit from access to nearby gyms, cafes, and some of the islands most respected restaurants, all within easy reach.

Established and Upscale Neighborhood
The surrounding neighborhood is quiet, established, and notably upscale, offering a sense of privacy while remaining closely connected to everything that matters.

Ideal for Modern Professionals
Whether youre a professional seeking a well-positioned base, or simply looking to elevate your day-to-day lifestyle, this one-bedroom at Turtle Cove delivers a compelling balance of location, quality, and ease.

Elevated Everyday Experience
This is Cayman living, simplified and elevated.

How do you want to live your life?

Location

Property Inquiry

* Denotes Required Inputs
By clicking Submit, you agree to our Privacy Policy.

Contact Agent

This site uses cookies to serve our services. By using our site, you acknowledge that you have read and understand our Cookie Policy and Privacy Notice. Your use of Rentals By CIREBA Real Estate Cayman Islands is subject to these policies.